Neubau Sozialtentrum Rodgau Nieder-Roden Wettbewerb 2025 Anerkennung

STADTLOGGIA
Das neue Stadtteilzentrum bildet mit der „Stadtloggia“ eine markante städtebauliche Geste am Puiseauxplatz. Die offene Fassade führt den öffentlichen Raum ins Gebäude und schafft eine prägnante Adresse mit Platzcharakter.

FIGURQUALITÄT
Die L-förmige Grundfigur fügt sich selbstverständlich in den Kontext ein, nutzt die Abstandsflächen optimal und wirkt trotz Größe maßvoll gegliedert.

IDENTITÄT UND OFFENHEIT
Das Gebäude versteht sich als adaptierbares System, offen für Nutzungswechsel und erweiterbar. Es fungiert als „anderer Ort“, Kristallisationspunkt urbaner Qualität und Auslöser städtebaulicher Transformation. Seine Eigenständigkeit erzeugt Identifikation, Orientierung und Zugehörigkeit.

ANTAGONIE AUS HOLZ
Unbehandeltes Holz prägt Fassade und Lamellenstruktur. Diese fungieren zugleich als Absturzsicherung, Einbruchschutz, Sonnenschutz und Ausdruck funktionaler Vielschichtigkeit.

NUTZUNGSKONZEPT
Ein Foyer mit Kolonnadengang öffnet sich zum Platz und erschließt Bibliothek, VHS und Jugendzentrum. Freitreppen verbinden die Ebenen und stärken Kommunikation. Flexible Raumstrukturen, zuschaltbare Bereiche, separate Zugänge und „Stadtbalkone“ bieten vielfältige Nutzungsmöglichkeiten.

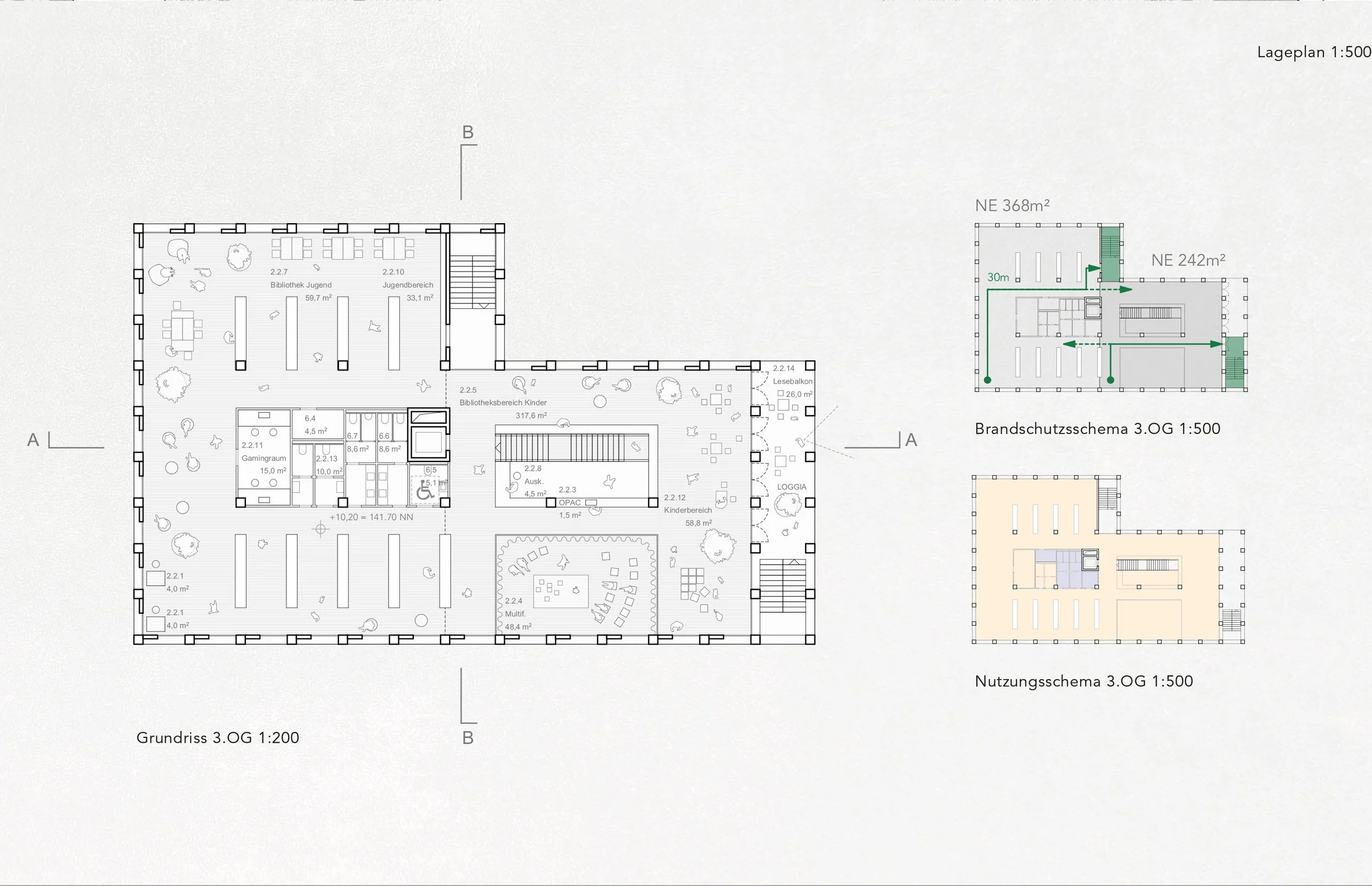
BRANDSCHUTZ
Zwei Nutzungseinheiten à max. 400 m² mit direkten Treppenräumen; Freitreppenbereiche werden im Brandfall mit Vorhängen abgetrennt.

ENERGIE & NACHHALTIGKEIT
Robuste, demontierbare Struktur mit regionalen, sortenreinen Materialien. PV-Anlagen, Regenwasserrückhaltung und modulare Bauweise sichern Nachhaltigkeit.

TECHNIK – LOWTECH
Reduzierte Gebäudetechnik: hochgedämmte Hülle, natürliche Lüftung, Nachtauskühlung über Lehmdecken, Wärmepumpe und PV.

TRAGWERK
Skelettbau aus Holz und Lehm mit vorgefertigten Elementen, sichtbaren Oberflächen und wirtschaftlicher Konstruktion. Die Holzbalkendecken mit Lehmfüllung erfüllen Tragfähigkeit, Brand- und Schallschutz.

WIRTSCHAFTLICHKEIT
Modulare Holzbauelemente mit hohem Wiederholungsgrad, kompakte Technikzentrale, teilweise Unterkellerung.

LCA-/LCC-BILANZIERUNG
CO₂-Reduktion durch Holz/Lehm statt Beton, Geothermie und PV. Dynamisch bilanziert liegt der Fußabdruck bei ca. 6–8 kgCO₂/m² BGF.

Auslober: Stadt Rodgau

Architekt:  Moeller Soydan

Brandschutz: KLW-Ingenieure GmbH

Standort: Puiseauxplatz I Rodgau I Nieder-Roden

Zurück
Zurück

Molkenmarkt Berlin

Weiter
Weiter

Weiterführende Schule und Sporthalle Hafner Konstanz Anerkennung